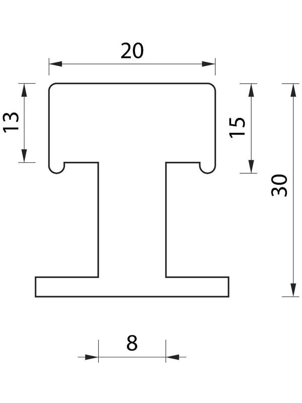
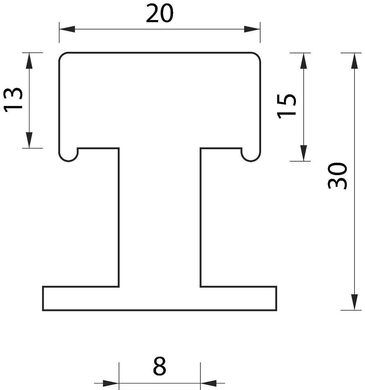
Общие характеристики:
Вид :
Зажим, Зажим
Фасовка, шт:
100, 100
Толщина, мм:
1.4

В скором времени он отобразится на сайте.
Возможно вы не приобретали этот товар. Отзывы можно оставлять только к тем товарам, которые были куплены.